西大島店 賃貸営業部(定休日水曜)
03-3636-3111
西大島店 売買仲介部(定休日水曜)
03-3636-3611
砂町店 売買営業部(定休日水曜)
03-3640-3111
お気軽にご相談・お問い合わせください
| 価格 | 3,990万円 ![]() |
||||
|---|---|---|---|---|---|
| 所在地 | 東京都江東区東砂6丁目
この地域周辺の物件を見る |
建物面積 | 67.16u | バルコニー面積 | 9.73m² |
| 交通 | 東京メトロ東西線 南砂町駅/徒歩19分
都営新宿線 東大島駅/東砂六丁目北 バス7分 停歩2分 |
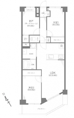
管理費等 | 13,180円 | 修繕積立金 | 8,630円 | 築年月 | 1979年2月築 | 間取り | 2SLDK (LDK15/S4/洋室5.5/洋室5.8) | 所在階/階数 | 11階/地上11階建 |
電話をかける(携帯・PHS可)
03-5628-2811
「ホームページを見て」とお伝え下さい。
お問い合わせ番号をお伝えください
RHS-K5755
| 特徴 |
|
|---|---|
| セールスコメント | - |
| リンク | |
| 備考 |
| 採光面 | - | 取引態様 | 仲介 |
|---|---|---|---|
| 現況 | 空家 | 引渡し | 相談 |
| 総戸数 | 92戸 | 構造 | SRC造 |
| テラス面積 | - | 専用庭面積 | - |
| 駐車場 | - | 駐輪場 | - |
| 建物権利 | 区分所有 | 土地権利 | 所有権の共有 |
| 用途地域 | 準工業地域 商業地域 - | 管理態様 | 管理形態:委託(勤務形態未定) 管理組合:- 管理会社:⽇;本ハウズイング |
| 小学校区 | 江東区立第五砂町小学校 (東京都江東区) この学区の他の物件を見る |
中学校区 | 第二砂町中学校 (東京都江東区) この学区の他の物件を見る |
電話をかける(携帯・PHS可)
03-5628-2811
「ホームページを見て」とお伝え下さい。
お問い合わせ番号をお伝えください
RHS-K5755
| 年利率 | % |
||
|---|---|---|---|
| ボーナス払い | 返済年数 | ||
| 頭金 | 直接入力する | 万円 | |

毎月のご返済額 |
ボーナス(×年2回) |
物件価格3,990万円 |
電話でお問い合わせ
大雄開発 株式会社
|
電話をかける 03-5628-2811 ※「ホームページを見て」とお伝えください。 |
お問い合わせ番号をお伝えください RHS-K5755 |
|---|
★新規リノベーション実施(2026年3月完了予定)!
★最上階 帆当たり・眺望良好!