西大島店 賃貸営業部(定休日水曜)
03-3636-3111
西大島店 売買仲介部(定休日水曜)
03-3636-3611
砂町店 売買営業部(定休日水曜)
03-3640-3111
お気軽にご相談・お問い合わせください
| 価格 | 7,998万円値下がり ![]() |
||||
|---|---|---|---|---|---|
| 所在地 | 東京都江戸川区南葛西5丁目
この地域周辺の物件を見る |
土地面積 | 85.8m² (25.95坪) | 建物面積 | 111.98u |
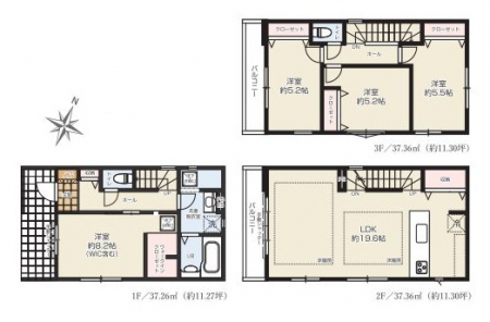
| 築年月 | 新築 2025年築 | 間取り | 4LDK (LDK19.6/洋室5.2/洋室8.2/洋室5.5/洋室5.2) | ||
| 交通 |
JR京葉線 葛西臨海公園駅/徒歩17分
東京メトロ東西線 葛西駅/コーシャハイム南葛西 バス8分 停歩8分 |
||||
電話をかける(携帯・PHS可)
03-5628-2811
「ホームページを見て」とお伝え下さい。
お問い合わせ番号をお伝えください
RHS-N-0882
| 特徴 |
|
|---|---|
| セールスコメント | - |
| リンク | |
| 備考 |
| 採光面 | - | 構造/階数 | 木造/地上3階建 |
|---|---|---|---|
| 建ぺい率 | 60(%) | 容積率 | 300(%) |
| 駐車場 | - | 現況/引渡し | 建築済/相談 |
| 土地権利 | - | 私道負担面積 | - |
| 接道状況 | - | 用途地域 | 第一種住居地域
|
| セットバック | - | 法令上の制限 | - |
| 地目 | 宅地 | 地勢 | |
| 建築確認番号 | 都市計画 | 市街化区域 | |
| 小学校区 | 江戸川区立南葛西小学校 (東京都江戸川区) この学区の他の物件を見る |
中学校区 | 南葛西中学校 (東京都江戸川区) この学区の他の物件を見る |
| 取引態様 | 仲介 | ||
電話をかける(携帯・PHS可)
03-5628-2811
「ホームページを見て」とお伝え下さい。
お問い合わせ番号をお伝えください
RHS-N-0882
| 年利率 | % |
||
|---|---|---|---|
| ボーナス払い | 返済年数 | ||
| 頭金 | 直接入力する | 万円 | |

毎月のご返済額 |
ボーナス(×年2回) |
物件価格7,998万円 |
電話でお問い合わせ
大雄開発 株式会社
|
電話をかける 03-5628-2811 ※「ホームページを見て」とお伝えください。 |
お問い合わせ番号をお伝えください RHS-N-0882 |
|---|
-